The Sandwich Brewing Company. Architect Jason Grossi
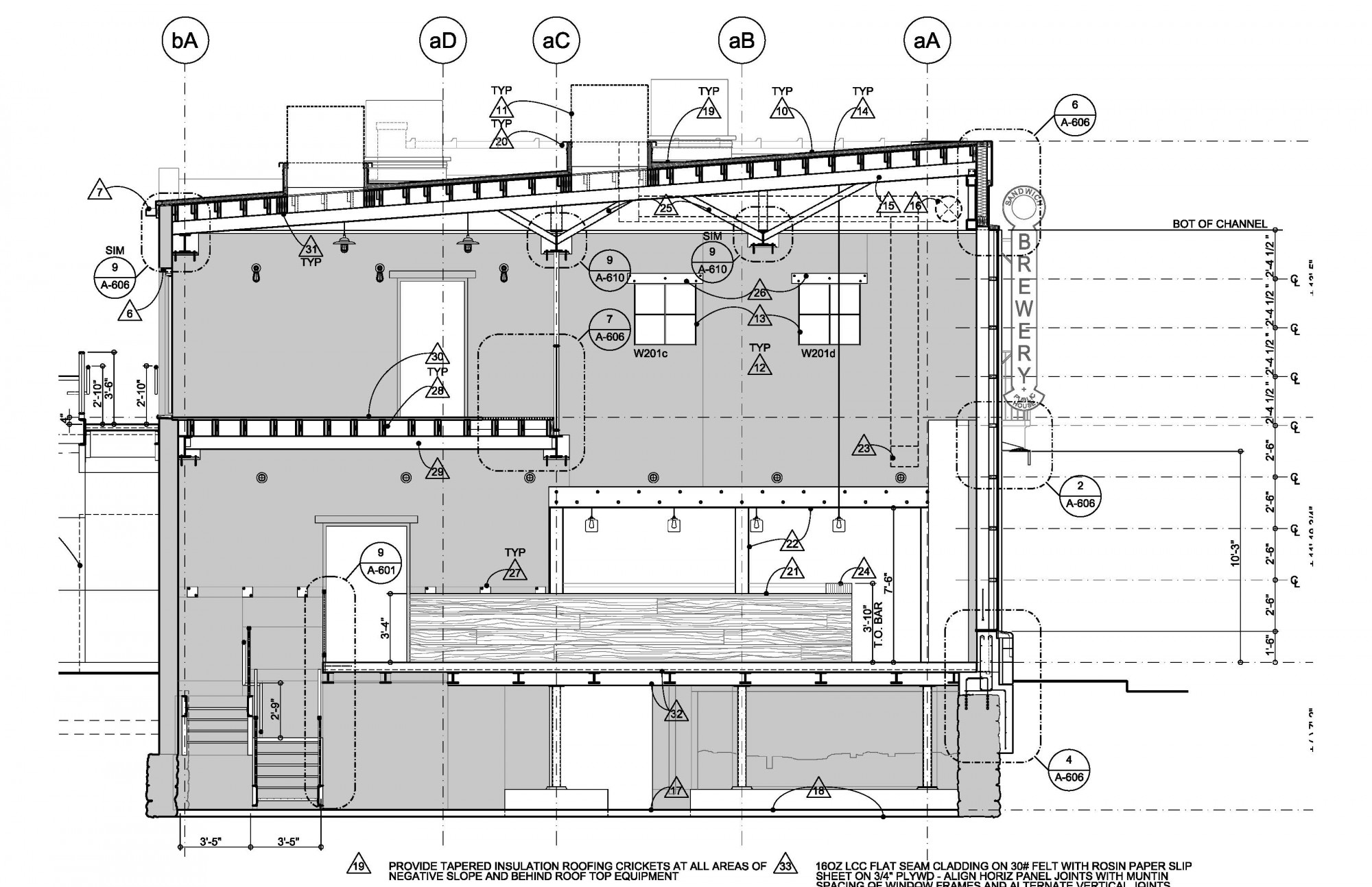
The work is an adaptive reuse of a grouping of older historic constructs into a new microbrewery, which took over 3 years to complete. The work includes extensive forensic and historical research before being able to craft a contemporary architectural piece utilizing many historic construction techniques and methods. This is the first new construction in Old Sandwich Towne under the Heritage District Guidelines in the city of Windsor. Much of Jason’s analysis and methods for this work have been adopted by the city in their guidelines for other heritage projects requiring contemporary inserted pieces.At the outset, the original structures were in a state of collapse when Jason first began research and archival documentation of the historic structure. The work became a significant structural stabilization effort in addition to rehabilitation, restoration and new design work. The forensics determined that around 1950 the original façade of the building had collapsed and a banal aluminum siding face was put on (see before image) requiring the design work to include a new façade. In this way the work is not only the resurrecting of historic structures into a new brewery but the beginning of the restoration of the block of
Sandwich Street. Mostly, the owners themselves completed construction, with ongoing guidance from Jason on historic methods and mix designs for mortar, etc. Jason is the only certified heritage professional in Windsor in addition to a licenced architect and composer. Other heritage projects ongoing with his work include Willistead Manor and Mackenzie Hall.
Sandwich Street. Mostly, the owners themselves completed construction, with ongoing guidance from Jason on historic methods and mix designs for mortar, etc. Jason is the only certified heritage professional in Windsor in addition to a licenced architect and composer. Other heritage projects ongoing with his work include Willistead Manor and Mackenzie Hall.You can read more about the new microbrewery at http://windsorstar.com/news/local-news/ive-always-believed-in-sandwich-says-brewery-owner. It is also open for tours and, of course, beer. See the hanging expanded metal mesh stair, which was necessary to reduce the weight bearing on the brittle old masonry walls. VABE students and Civil Engineering students should ask for a tour of the foundations and the cantilevered slab supporting the brew tanks, which were too massive to also bear on the existing lime mortar brick walls.

PROFILE
Jason Grossi is a Canadian composer, classical guitarist and architect based in his hometown of Windsor, Ontario. He is an assistant professor and Coordinator of the Visual Arts and the Built Environment [VABE], a unique program between the School of Creative Arts at the University of Windsor (Windsor, Ontario) and the School of Architecture at the University of Detroit Mercy (Detroit, Michigan).
VABE brings together students and faculty from both schools to approach the design of the built environment as artist and architect. By crossing the boundaries of these traditionally separated professions, students learn to examine the built environment from the perspective of aesthetics, creativity, social culture, construction, utility, meaning, and history.
Architect
Jason Grossi completed his architectural degree with a Graduate Fellowship from the University of Illinois at Urbana-Champaign (UIUC). As an architect, he studied with Dominique Perrault, architect for the French National Library, and apprenticed under Gunnar Birkerts, FAIA. At the University of Illinois, Jason was given the Award in Architecture for his specialization in sacred architecture. His thesis was titled “The Sacred Space of the Franciscan Friary”.
Prior to opening studio g+G, Mr. Grossi worked as project designer for various architecture firms in the Detroit, Michigan area. His experience includes diverse building typologies ranging from corporate university buildings to industrial complexes. He has worked as a strategic planning consultant for General Motors, employing his design expertise for initiatives related to Eero Saarinen’s renowned General Motors Technical Center in Warren, Michigan. He has also been engaged as an adjunct and sessional professor at several Architectural Schools in the Windsor/ Detroit area.
Mr. Grossi opened studio g+G in Windsor, Ontario in 2003. This innovative architecture and urban design studio works globally as one office from two locations – Windsor, Ontario, Canada and Moscow, Russia. Jason’s firm, co-founded with his colleague Alexander Gagkayev, is recognized internationally as an emerging practice. Both Jason and Alexander have broad experience practicing as licensed architects in four different countries.
Jason’s projects at studio g+G have included structures for the arts (including museum, gallery, and exhibition designs), campus and educational facilities, and residential work. Other projects include retail design, office design, master planning, historic preservation, adaptive reuse and industrial design.
Composer
Jason Grossi’s works range from pieces for large orchestra to small ensembles with the majority of his works tailored, as a result of commissions, for his local chamber sized symphonic orchestra and works for local musicians. His work employs methods of transcribing architecture into music and vice versa allowing an inner dialog to develop between composing and design. He believes that a direct approach bridging relationships between various methods developed for tonal and post-tonal music and architectural principals establishes solid directions for composition devoid of arbitrary associations. The result is music that is resourceful with expressiveness and complexity, yet accessible to audiences.
Jason began his musical life very young, first studying classical guitar, then clarinet, trumpet, piano, theory, counterpoint and composition. By the age of 17 his works were being requested and performed by his local orchestra. While studying with Paul McIntyre, Jason met Iannis Xenakis and became fascinated with the interdisciplinary relationships required in Architecture. This took him to universities in the United States including a Fellowship at the University of Illinois at Urbana-Champaign studying composition with Heinrich Taube and P.Q. Phan while completing his studies in Architecture.
Jason Grossi, architect, assistant professorSchool of Creative Arts | VABE
University of Windsor
(519) 253-3000 x 2781
jgrossi@uwindsor.ca
jgrossi@uwindsor.ca
Strategic Priority:
Academic Area: