Exterior front photo of Canterbury Commons
×

Error message

Access denied. You must login to view this page.

Apartment Information

Geoffrey Fisher Hall

Geoffrey Fisher Hall Apartments are all one-bedroom units with living room, kitchen, bathroom, and bedroom. The building has four floors with no elevator. There is a common laundry room on the ground floor. Majority of the residents in the apartment building are couples and senior graduate students. However, the building is open for mature undergraduate students as well. Children and pets are not allowed. All apartments are unfurnished and utilities and internet are included in monthly rent. This building does not have A/C, but window units can be rented from Admin for a small monthly charge.

Geoffrey Fisher Hall: Apartment Layouts

LAYOUT A: APARTMENT # 2, 21, 31, 41
LAYOUT B: APARTMENT # 7, 28, 38, 48
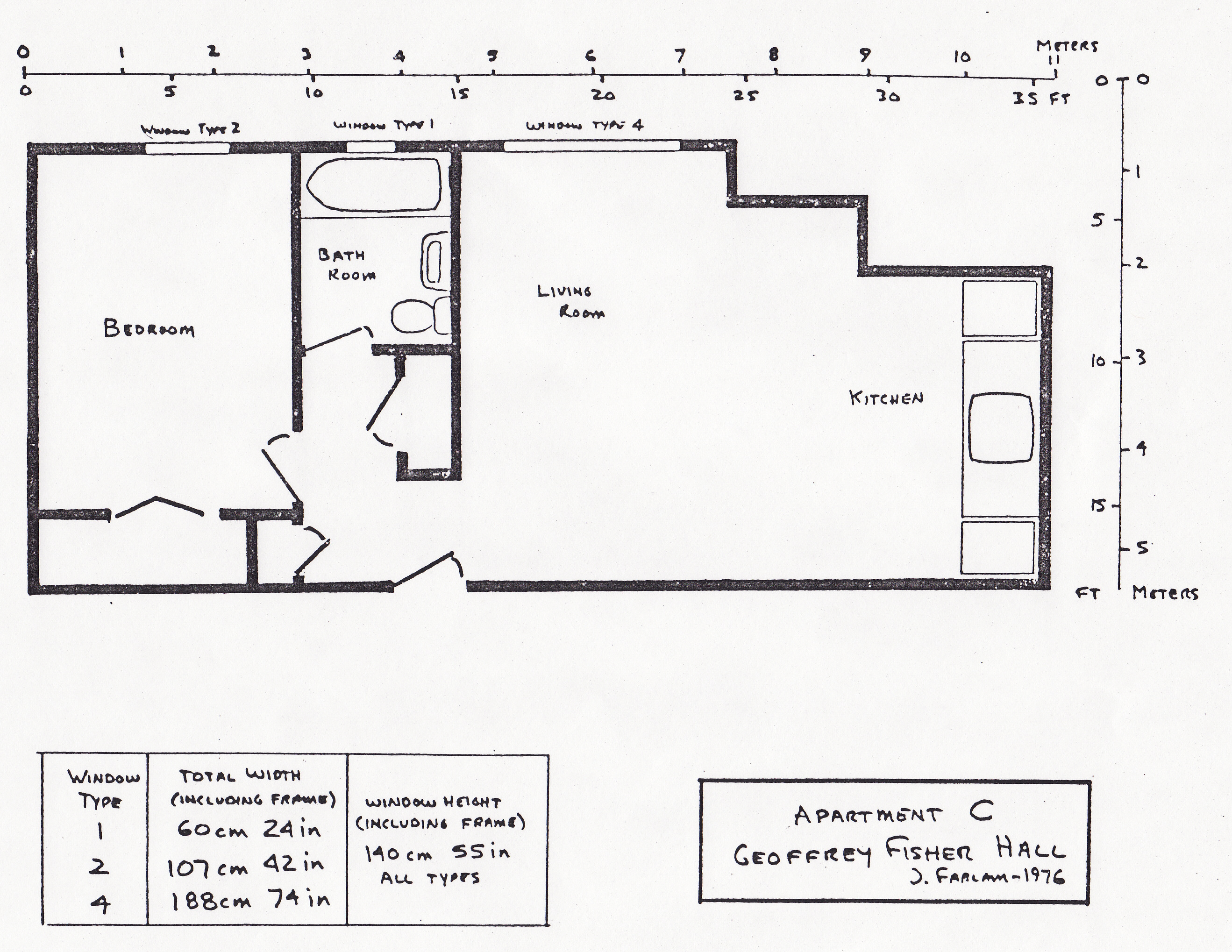
LAYOUT C: APARTMENT # 1, 20, 30, 40
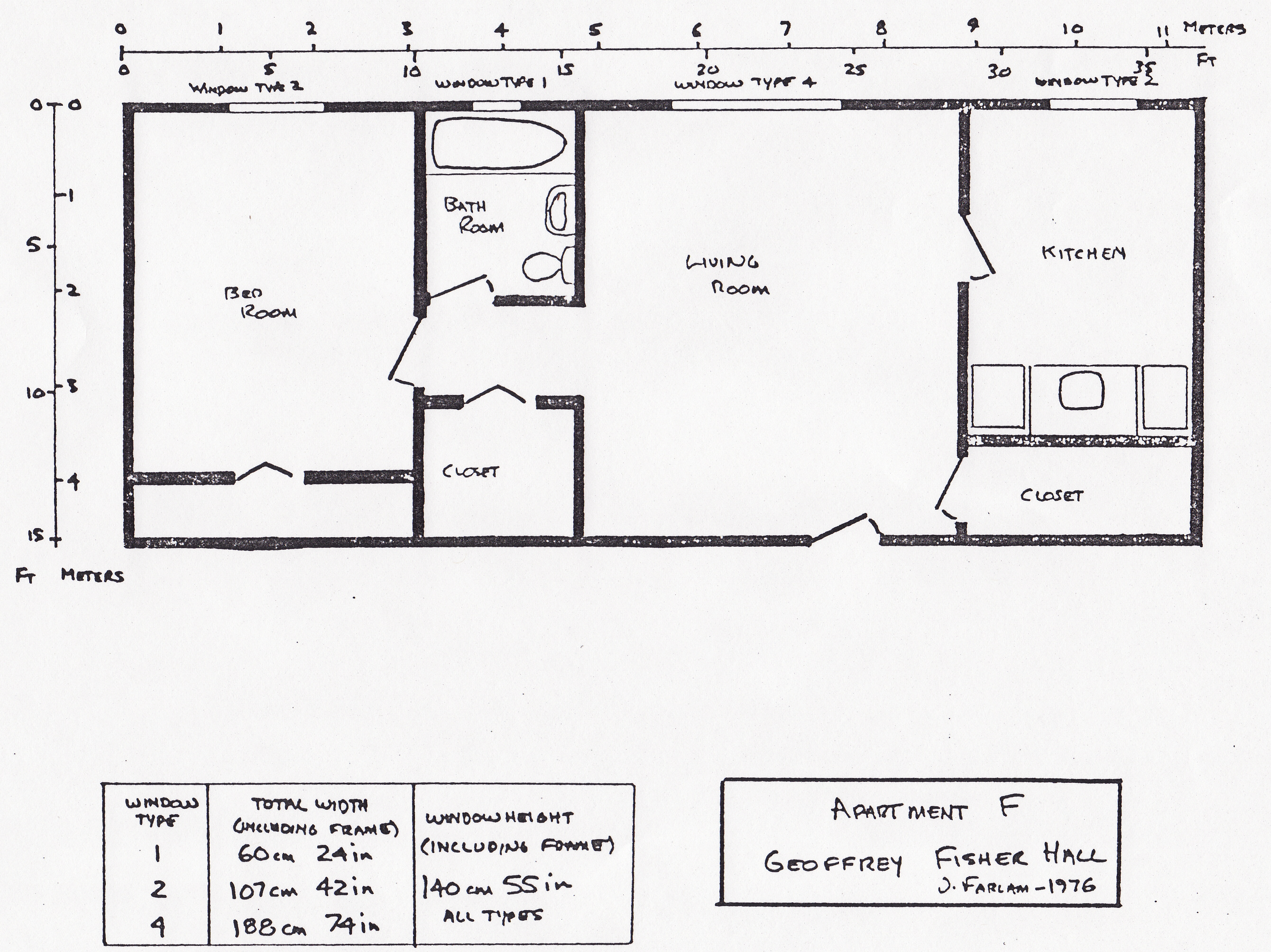
LAYOUT D: APARTMENT # 8, 29, 39, 49
LAYOUT E: APARTMENT # 25, 35, 45
LAYOUT F: APARTMENT # 24, 34, 44
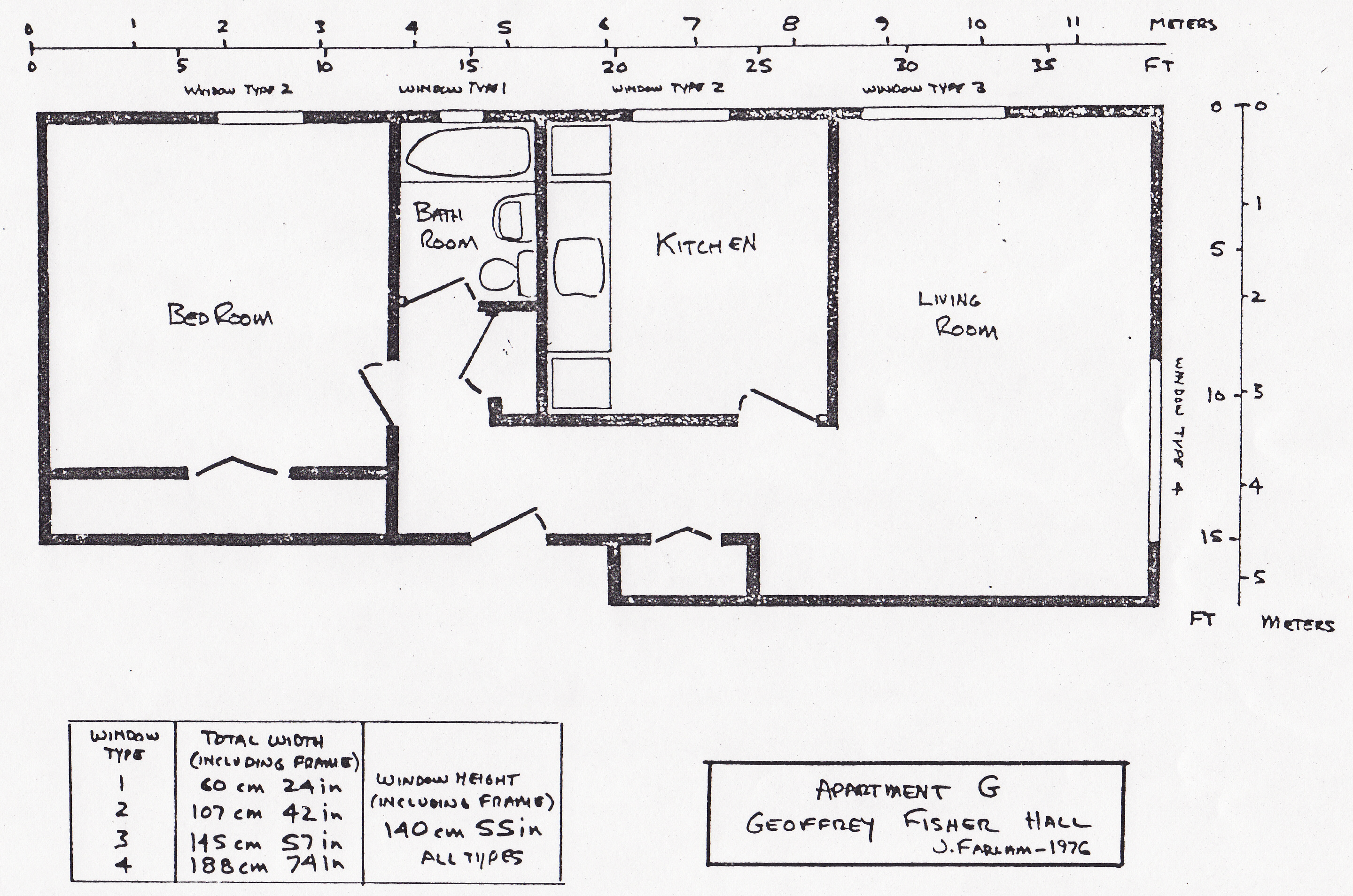
LAYOUT G: APARTMENT # 6, 27, 37, 47
LAYOUT H: APARTMENT # 3, 22, 32, 42
LAYOUT I:  APARTMENT # 5, 26, 36, 46
LAYOUT J:  APARTMENT # 4, 23, 33, 43

Parker House Suites

Parker House Suites apartments are all one-bedroom units with living room, kitchen, bathroom, and bedroom. There is a common laundry room in the basement. The building has three floors with no elevator. Children and pets are not allowed. All apartments are unfurnished and utilities and internet are included in monthly rent.

Parker House Suites Apartment Layouts

LAYOUT A: APARTMENT #101, 201, 301
LAYOUT B: APARTMENT #102, 202, 302 not available at this time

Canterbury Commons

Canterbury Commons (our new building) has a mixture of one-bedroom and bachelor apartments, all complete with kitchen, bathroom, and bedroom/living space. The apartments are spread among the ground floor, second floor, and third floor, and there is no elevator access. Apartments on the groud floor are accessible. There is a common laundry room on the ground floor. Children and pets are not allowed. All apartments are unfurnished and utilities and internet are included in monthly rent.